Cila – Cluster del Mueble
Dirección
www.cila.com.co
Teléfono Cuidad de Panamá: +507 6151-8159
Teléfono Barranquilla, Colombia: +57 316 4645433
Características
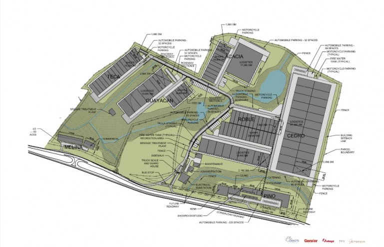
Parque industrial y logístico de 200.000 m2, disponible para alquiler en tamaños desde 1.200 m2 hasta 60.000 m2 El Plan Maestro del parque ha sido concebido de tal manera que el desarrollo se haga por fases estratégicamente definidas, lo cual permite que cada una se desarrolle sin impactar la operación de las industrias ya establecidas
EQUIPO DE TRABAJO:
- Gensler
- Epstein
- Otepi
- PFV
- El diseño del CILA está a la altura de los mejores estándares de clase mundial.
- Bodegas con diseño modular, a partir de 1.080 m2 en superficie y altura libre de 6 a 12 m
- Amplias zonas de circulación y maniobras 36 m entre fachadas
- Aceras peatonales continuas
- Plazas de estacionamiento para vehículos livianos, vehículos pesados y motocicletas
- Vigilancia 24 horas
- Servicio de Pesaje
- Acceso a salas de exhibición, salón de eventos, locales comerciales y servicios bancarios
- Capacitación y Entrenamiento de personal, en alianza con el SENA (Servicio Nacional de Aprendizaje de Colombia)
- Servicios públicos confiables: energía eléctrica, gas, agua potable, telecomunicaciones, aseo
- Reciclaje y manejo responsable de desechos: separación y disposición de residuos
- Áreas recreativas
- Beneficios tributarios

